Q41F46-16C襯氟球閥介紹:
襯氟球閥是用帶圓形通孔的球體作啟閉件,球體隨閥桿繞閥體中心線旋轉以實現閥門開啟和關閉。采用特殊的模壓工藝,使密封麵致密良好,加之V型PTFE填料組合使閥門達到零泄漏;球體與閥桿鑄為一體,杜絕瞭由於壓力變化引起閥桿沖出承壓件內的可能性,根本保證使用中的安全性;采用全塑料襯裡工藝,耐介質的強腐蝕。
Q41F46-16C襯氟球閥特點:
1、采用FEP襯裡層的球閥,具有極高的化學穩定性,可以適用除“熔融堿金屬和元素氟”,以外其它任何強腐蝕性質
2、采用全通徑、浮動球結構,閥門可在整個壓力范圍內進行無泄漏關閉,更便於管路系統的通球掃線和管路維護
3、啟閉件球件與閥桿鑄(鍛)為一體,杜絕瞭由於壓力變化引起閥桿沖出承壓件內的可能性,從根本上保證瞭工程中的使用安全性
4、結構緊湊合理,閥體內腔空間最小,減小瞭介質滯留,另外,特殊的模壓工藝,使密封麵致密度良好,加之人字環形PTFE填料組合,使閥門達到零泄漏
5、兩片式、三片式結構可適應各種不同要求的管路系統和工況條件,其中三片球閥允許主閥體與兩側閥體分離,可實現在線快速更換、維修
Q41F46-16C襯氟球閥主要零件:
序號 | 零件名稱 | 鑄鋼 | 不銹耐酸鑄鋼 | 超低碳不銹耐酸鑄鋼 | ||
C | P8 | R8 | R3 | R3 | ||
1 | 閥體/閥蓋 | A216-WCB | A351-CF8 | A351-CF8M | A351-CF3 | A351-CF3M |
2 | 球體/閥桿 | A216-WCB | A351-CF8 | A351-CF8M | A351-CF3 | A351-CF3M |
3 | 襯裡/閥座 | PTFE(F4)、PCTFE(F3)、FEP(F46)、PFA(可溶F4) | ||||
4 | 填料/壓蓋 | PTFE(F4) | A351-CF3 | A351-CF3 | ||
5 | 填料 | A216-WCB | A351-CF8 | A351-CF8 | ||
6 | 支架 | A193-B7 | A194-8 | A193-B8M | ||
7 | 緊固螺栓 | A193-B7 | A193-B8M | A194-8 | ||
8 | 螺母 | A194-2H | A194-8 | A194-8 | ||
9 | 操作手柄 | A216-WCB | A216-WCB | A216-WCB | ||
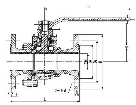
Q41F46-16C襯氟球閥結構圖:

Q41F46-16C襯氟球閥連接尺寸:
公稱通徑 | PN1.6(MPa)主要外形尺寸和連接尺寸(mm) | 參考值 | |||||||
DN | L | D | D1 | D2 | f | b | Z-Φd | H1 | Do |
15 | 130 | 95 | 65 | 45 | 3 | 14 | 4-Φ14 | 95 | 140 |
20 | 140 | 105 | 75 | 55 | 3 | 14 | 4-Φ14 | 98 | 150 |
25 | 150 | 115 | 85 | 65 | 3 | 16 | 4-Φ14 | 113 | 150 |
32 | 165 | 135 | 100 | 78 | 3 | 18 | 4-Φ18 | 130 | 180 |
40 | 180 | 145 | 110 | 85 | 3 | 18 | 4-Φ18 | 135 | 200 |
50 | 200 | 160 | 125 | 100 | 3.5 | 20 | 4-Φ18 | 140 | 220 |
65 | 220 | 180 | 145 | 120 | 3.5 | 20 | 4-Φ18 | 145 | 280 |
80 | 250 | 195 | 160 | 135 | 4 | 22 | 8-Φ18 | 205 | 320 |
100 | 280 | 215 | 180 | 155 | 4 | 24 | 8-Φ18 | 230 | 380 |
125 | 320 | 245 | 210 | 185 | 4 | 26 | 8-Φ18 | 252 | 500 |
150 | 360 | 280 | 240 | 210 | 4 | 28 | 8-Φ23 | 283 | 600 |
200 | 400 | 335 | 295 | 265 | 5 | 30 | 8-Φ23 | 325 | 750 |
批發市場僅提供代購諮詢服務,商品內容為廠商自行維護,若有發現不實、不合適或不正確內容,再請告知我們,查實即會請廠商修改或立即下架,謝謝。


