產品簡介
地藏式安裝,節省地麵空間,方便汽車進出;
剪式結構,便於更換汽車輪胎及修理作業;
抽拉式延伸平臺,適合多種車型;
設有機械自鎖裝置,氣動釋放打開保險,操作方便;
主要部件模具化生產,製作精度高;
可選配意大利進口泵站。
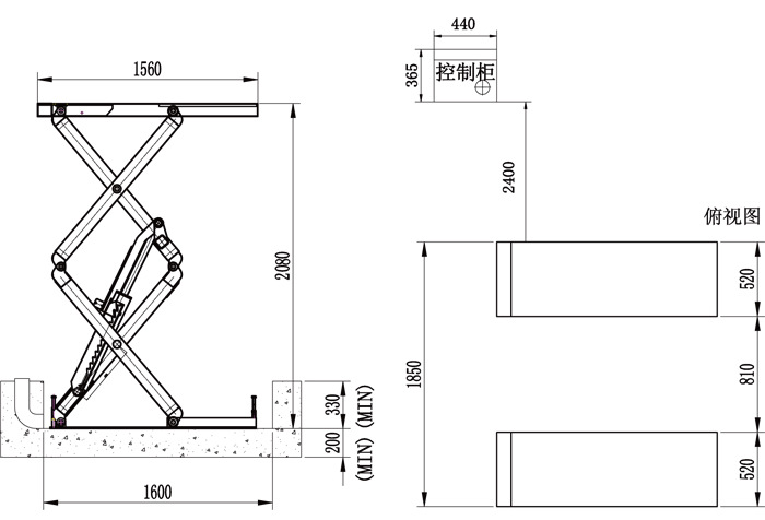
機械圖

產品配件

技術參數
| 額定負載 | 3000 Kg |
| 全行程上升時間 | 50-70s |
| 全行程下降時間 | 30-50s |
| 舉升高度 | 330-2080mm |
| 平臺長度 | 1560-1660mm(可調) |
| 電機功率 | 2.2KW |
| 電源 | 380V/50Hz,三相 |
新手教學
批發市場僅提供代購諮詢服務,商品內容為廠商自行維護,若有發現不實、不合適或不正確內容,再請告知我們,查實即會請廠商修改或立即下架,謝謝。


