工作原理
OXYGEN-610A電化學氧分析機,其傳感器采用的是電化學原理。根據不同的使用要求,來選擇不同類型的傳感器。
主要技術指標
測量范圍:0-100%范圍內任選,最小量程為0-1%。
零點漂移:≤±2%FS/7d
量程漂移:≤±2%FS/7d
線性誤差:≤±1%FS
重 復 性:≤0.5%
響應時間:≤15S
測量輸出:0/4-20mA;RS485/RS232(選配)
環境溫度:5-45°C
功 率:<80W
供電電源:220VAC±10% 50Hz±1Hz
重 量:約7Kg
用途及應用范圍
OXYGEN-610A電化學氧分析機用於在線連續分析混合物氣體中氧氣的含量。
1.熱電廠、水泥廠、冶金等流程控制設備中,監測氧的含量,以控制燃燒與通風量之間的最佳比例,提高燃燒效率。
2.生物發酵等氧氣濃度監測。
3.研究動植物的呼吸過程及醫學生物學研究。
4.實驗室燃燒試驗的氣體含量測定。
5.高壓氧艙氧氣含量監測。
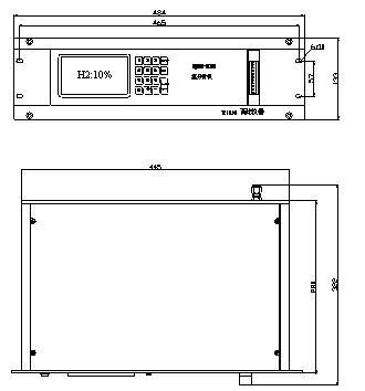
機器安裝尺寸圖

性能特點
• 標準19"機箱;壁掛式機箱。
• 大屏幕LCD顯示。
• 信號輸出為同步、電流輸出負載≤400Ω
• 本機器有兩組可調節點輸出(220VAC/0.5A),每組提供一個常開節點,一個常閉節點。(選配)
新手教學
批發市場僅提供代購諮詢服務,商品內容為廠商自行維護,若有發現不實、不合適或不正確內容,再請告知我們,查實即會請廠商修改或立即下架,謝謝。


