
風光互補路燈供電系統早期主要應用在道路照明上,風光互補路燈以其良好的穩定性、美觀的外形引領瞭道路照明的發展方向。
風光互補路燈不僅節能,迎風旋轉的風機更是一道靚麗的風景線,節能同時美化環境,可謂一舉兩得。每一盞風光互補路燈都是一套獨立的系統,無需輔設電纜,安裝方便,一般道路都具備安裝條件。在當前全社會高度關註節能環保的大環境下,風光互補路燈呈現出瞭加速發展的勢頭。但大部分地區需要安裝風光互補路燈的地區,都屬於低風速地區,風力發電機的發電量很難滿足路燈整晚亮燈的要求,以至於限制行業的發展。廣州尚能公司推出MINI型內置控制器風力發電機,具備瞭MPPT升壓功能,從根本上改變瞭這種局麵,使得風光互補路燈在照度和亮燈時間上,給客戶提供高品質的保證,而且為行業的健康發展提供瞭強有力的技術保障。
風光互補路燈供電系統主要由風力發電機、太陽能電池板、控制器、蓄電池組、電纜及支撐和輔助件組成一個發電系統。夜間和陰雨天無陽光時由風能發電,晴天由太陽能發電,在既有風又有太陽的情況下,兩者同時發揮作用,實現瞭全天候的發電功能,比單用風機和太陽能更經濟、科學、實用。
系統組成如下:
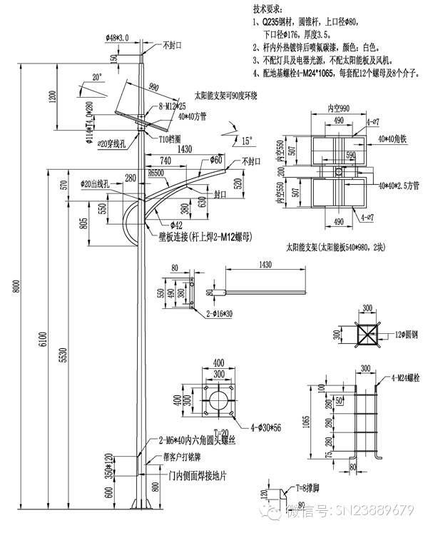
風光互補路燈8米立桿參考圖:
方案特點:
1.風光互補路燈可根據不同的氣候環境配置不同型號的風力發電機,在有限的條件內以達到風能利用最大化為目的。
2.太陽能電池板采用目前轉換率最高的單晶矽太陽能電池板,大大提升瞭太陽能的發電效能,有效改善瞭當風資源不足的情況下,太陽能電池板因轉換率不足,導致充電不足,無法保證燈正常亮燈的問題。
3.風光互補路燈控制器,風光互補路燈系統內最主要的部件,起著對其它部件發號指令與協同工作的主要作用,風光互補控制器,集光控亮燈,時控關燈,自動功率跟蹤,自動泄荷,過充過放保護功能於一身,性能穩定可靠,得到客戶的一致好評。
4.風光互補跟燈路燈采用高性能大容量免維護鉛酸或者膠體電池,為風光互補路燈提供充足的電能,保證瞭陰雨天時LED風光互補路燈光源的亮燈時間,大大提升瞭系統的穩定性。
工程項目展示:
節能環保,綠色低碳,尚能風電與您同在!
廣州尚能風力發電設備有限公司
官方網站:www.snwind.com
服務電話:400-6033-628
微信號:SN23889679
刁海蘭
廣州尚能風力發電設備有限公司
地址:廣州市番禺區番禺大道北555號天安節能科技園交流中心305-306室
郵編:511400
Tel: 020-39211683 Fax:020-39388854
Mobile:13926008230
QQ:2880181090
MSN:[email protected]
Email:[email protected]
Website: www.snwind.com
批發市場僅提供代購諮詢服務,商品內容為廠商自行維護,若有發現不實、不合適或不正確內容,再請告知我們,查實即會請廠商修改或立即下架,謝謝。


